泵的知識 PUMP KNOWLEDGE
行業新聞
您當前位置:網站首頁 >> 泵(bèng)的知識 >> 詳(xiáng)情內容
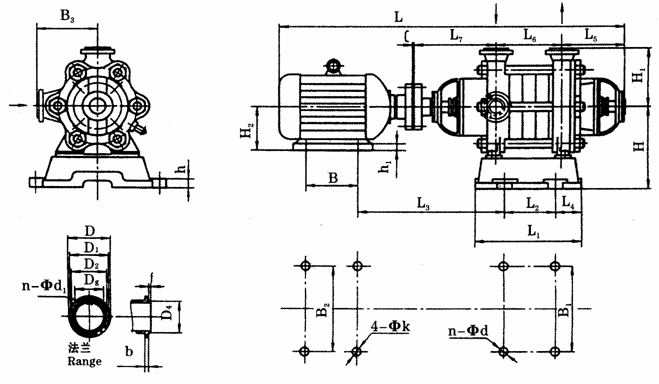
D型泵進出口法蘭安裝尺寸表
時間:2013/8/30 來源:浙江香蕉视频网站江(jiāng)泵業有限公司

| 泵型號 | 進口法蘭尺寸 Size of Inlet Flange | ||||||
| Dg | D | D1 | D2 | b | f | n-Φd | |
| D6-25 | 40 | 130 | 100 | 80 | 18 | 3 | 4-Φ13.5 |
| D10-40 | 40 | 145 | 110 | 85 | 18 | 3 | 4-Φ17.5 |
| D12-25 | 50 | 140 | 110 | 90 | 18 | 3 | 4-Φ13.5 |
| D16-60 | 65 | 185 | 145 | 100 | 22 | 4 | 4-Φ17.5 |
| D25-50 | 80 | 185 | 150 | 125 | 18 | - | 4-Φ18 |
| D43-30 | 80 | 200 | 160 | 133 | 22 | - | 8-Φ17.5 |
| D45-80 | 80 | 195 | 160 | 135 | 22 | 5 | 8-Φ18 |
| D46-50 | 80 | 185 | 150 | 125 | 18 | - | 4-Φ18 |
| D85-67 | 150 | 260 | 225 | 200 | 20 | - | 4-Φ18 |
| D85-80 | 100 | 215 | 180 | 155 | 22 | 5 | 8-Φ18 |
| 100D-16 | 100 | 205 | 170 | 145 | 18 | - | 4-Φ18 |
| 125D-25 | 125 | 235 | 200 | 175 | 20 | - | 8-Φ18 |
| 150D-30 | 150 | 280 | 240 | 210 | 24 | - | 8-Φ23 |
| D155-67 | 150 | 260 | 225 | 200 | 38 | 45 | 8-Φ34 |
| D280-23/84(2OOD43) | 200 | 340 | 295 | 268 | 28 | - | 8-Φ22 |
| D280=65/84(200D65) | 200 | 340 | 295 | 268 | 30 | - | 12-Φ22 |
| D450-60/84(250D60) | 250 | 405 | 355 | 320 | 32 | - | 12-Φ26 |
表1為D型泵進口法蘭安裝尺寸表
| 泵型號 | 出口法(fǎ)蘭尺寸(cùn) Size of Oulet Flange | |||||||
| Dg | D | D1 | D2 | D4 | b | f | n-Φd | |
| D6-25 | 40 | 150 | 110 | 88 | 75 | 20 | 4 | 4-Φ17.5 |
| D10-40 | 40 | 145 | 110 | 85 | - | 24 | 4 | 4-Φ17.5 |
| D12-25 | 40 | 150 | 110 | 88 | 75 | 20 | 4 | 4-Φ17.5 |
| D16-60 | 50 | 195 | 145 | 87 | - | 32 | 4 | 4-Φ26 |
| D25-50 | 80 | 210 | 170 | 140 | 120 | 30 | 4 | 8-Φ23 |
| D43-30 | 80 | 200 | 160 | 133 | - | 26 | - | 8-Φ17.5 |
| D45-80 | 65 | 220 | 170 | 135 | 109 | 32 | 4 | 8-Φ25 |
| D46-50 | 80 | 210 | 170 | 140 | 120 | 30 | 4 | 8-Φ23 |
| D85-67 | 150 | 340 | 280 | 240 | 203 | 38 | 4.5 | 8-Φ34 |
| D85-80 | 100 | 265 | 210 | 172 | 149 | 38 | 4.5 | 8-Φ30 |
| 100D-16 | 100 | 215 | 180 | 155 | - | 24 | - | 8-Φ18 |
| 125D-25 | 125 | 270 | 220 | 188 | - | 32 | - | 8-Φ25 |
| 150D-30 | 150 | 300 | 250 | 218 | - | 32 | - | 8-Φ25 |
| D155-67 | 150 | 340 | 280 | 240 | 203 | 38 | 4.5 | 8-Φ34 |
| D280-23/84(2OOD43) | 200 | 375 | 320 | 285 | 259 | 38 | 4.5 | 12-Φ30 |
| D280=65/84(200D65) | 200 | 415 | 345 | 285 | 259 | 44 | 4.5 | 12-Φ36 |
| D450-60/84(250D60) | 250 | 470 | 400 | 345 | 312 | 48 | 4.5 | 12-Φ36 |
表2為D型泵出口法蘭安裝尺寸表(biǎo)






